facebook tracking
Adapter l'affichage
Big image
Logement à loyer libre

Logements locatifs à loyer libre, inférieur au prix du marché privé.

Big image

Les plus

Parking
Ascenseur

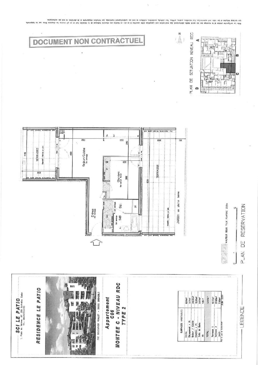
Location appartement

2 pièces - RDC - 52m²

Ref : Y024-229822

37 RUE DES ARTS ET METIERS - GRENOBLE (38000)

794,86 €

Charges comprises

A propos du prix

Sans honoraires
37 RUE DES ARTS ET METIERS GRENOBLE (38000)

Caractériques

Logement

  • Parking
  • Ascenseur
  • Double vitrage
  • Volets

Résidence et parties communes

  • Année de construction : 2010

Chauffage et énergie

  • Collectif Chauffage urbain
  • Consommation énergétique

    DPE C Consommation (énergie primaire)
    130 kWh/m2.an
  • Bilan Émission de gaz à effet de serre

    GES C Emissions
    11 kg CO2/m².an

Description

SANS HONORAIRES.
RESIDENCE LE PATIO.
37 RUE DES ARTS ET METIERS 38000 GRENOBLE.

SUPERBE TYPE 2 de 52m² en RDC AVEC DEUX TERRASSES. Le logement est composé d'un beau séjour cuisine qui donne sur les 2 terrasses. Une chambre de 12m² avec placard et accès à la terrasse. La salle de bains est équipée d'une baignoire, d'un meuble vasque et d'un sèche serviettes. Fenêtre dans la salle bain. Au calme.
Un garage en sous sol est associé à ce logement, et vous trouverez également un local vélos au sein de la résidence.

Proche des axes routiers et du tramway.

A SAISIR RAPIDEMENT. SANS HONORAIRE//NON SOUMIS PLAFOND PINEL.
Zone soumise à encadrement des loyers
loyer de référence majoré : 811,20 EUR
loyer de base : 622,28 EUR
complément de loyer : 0,00 EUR
Référence à rappeler lors de nos échanges : Y024 - 229822
Les informations sur les risques auxquels ce bien est exposé sont disponibles sur le site Géorisques : www.georisques.gouv.fr

Autres logements similaires

Logement à loyer libre

Logements locatifs à loyer libre, inférieur au prix du marché privé.

Appartement

2 pièces - 1er étage - 54m²

Parking, Ascenseur, Visiophonie
Résidence Le Concerto
GRENOBLE (38000)
867,47 €
Logement à loyer libre

Logements locatifs à loyer libre, inférieur au prix du marché privé.

Appartement

2 pièces - 1er étage - 55m²

Cuisine aménagée, Parking, Ascenseur
GRENOBLE (38000)
916,82 €
Logement à loyer libre

Logements locatifs à loyer libre, inférieur au prix du marché privé.

Appartement

3 pièces - 3ème étage - 73m²

Parking, Ascenseur
GRENOBLE (38000)
1 124,25 €
Logement à loyer libre

Logements locatifs à loyer libre, inférieur au prix du marché privé.

Appartement

4 pièces - 9ème étage - 80m²

Parking, Ascenseur, Visiophonie
Résidence Clos des fleurs
GRENOBLE (38000)
1 249,62 €