facebook tracking
Accéder au contenu principal Accéder au plan de site
Adapter l'affichage
Big image
Logement intermédiaire

Le logement intermédiaire est 10 à 15 % inférieur au prix du marché et implanté au plus près des bassins d'emploi. L'attribution est soumise à plafonds de ressources.

Logement neuf
Big image

Les plus

Ascenseur
Visiophonie

Location appartement

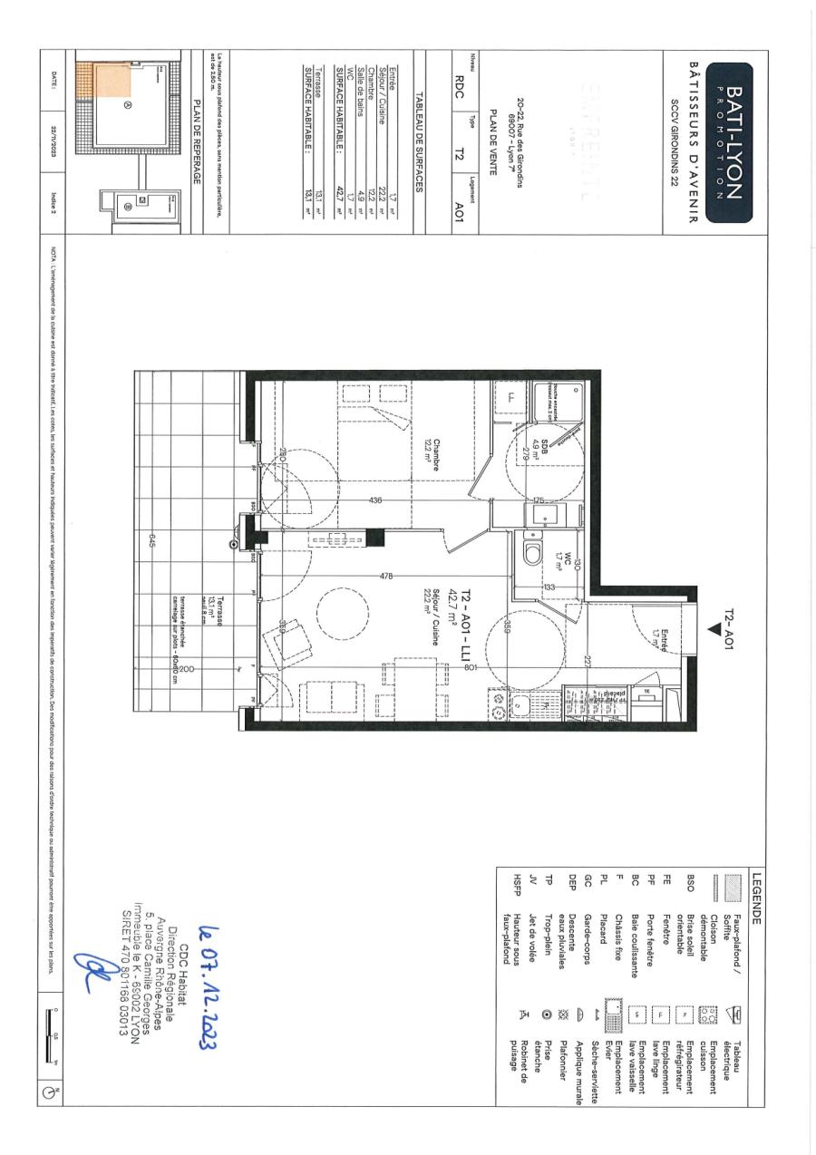
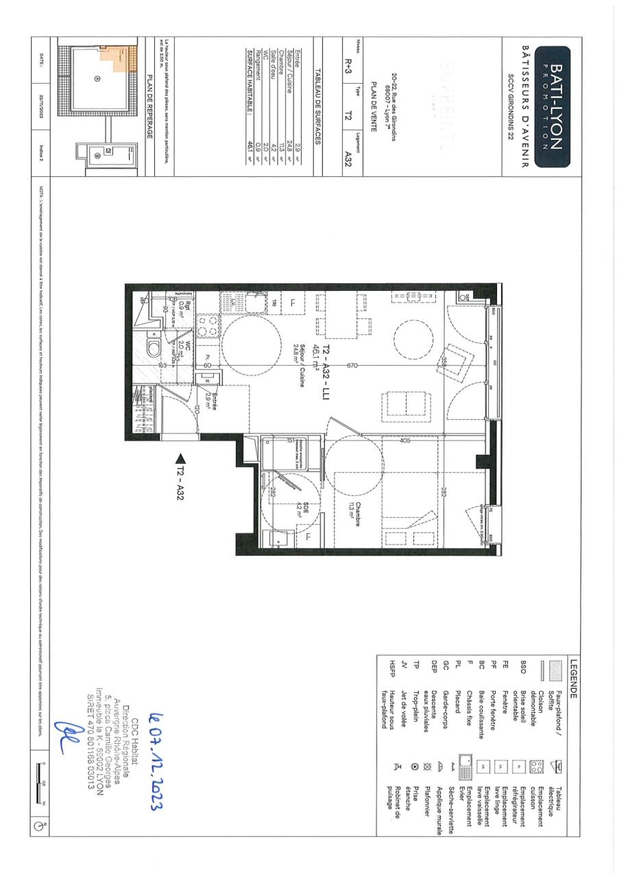
2 pièces - 4ème étage - 46m²

Ref : A994-389383

20 RUE DES GIRONDINS - LYON (69007)

782,21 €

Charges comprises

A propos du prix

Sans honoraires
20 RUE DES GIRONDINS LYON (69007)

Pour visionner la carte, vous devez accepter le cookie alentoor.

Caractériques

Logement

  • Ascenseur
  • Visiophonie
  • Double vitrage

Résidence et parties communes

  • Année de construction : 2026

Chauffage et énergie

  • Collectif Chauffage urbain

Description

SANS HONORAIRES.
Lyon 7, 20 rue des Girondins. Devenez le 1er locataire de ce beau T2 de 46 m2 au 3ème étage au sein d'une résidence sécurisée.
Ce logement se compose d'une entrée avec placard, d'un séjour/cuisine (évier, hotte, plaque, quelques meubles) de 25 m2, d?une chambre de 11 m2, d'une salle de bain avec douche et un WC séparé.
Eau chaude et chauffage provisionnés dans le loyer.
Pas de stationnement.
Transport et commerces à proximité.
Disponible mi juin 2026
Zone soumise à encadrement des loyers
loyer de référence majoré : 800,40 EUR
loyer de base : 645,00 EUR
complément de loyer : 0,00 EUR
Référence à rappeler lors de nos échanges : A994 - 389383
Les informations sur les risques auxquels ce bien est exposé sont disponibles sur le site Géorisques : www.georisques.gouv.fr

Autres logements similaires

Logement intermédiaire

Le logement intermédiaire est 10 à 15 % inférieur au prix du marché et implanté au plus près des bassins d'emploi. L'attribution est soumise à plafonds de ressources.

Appartement

2 pièces - RDC - 42m²

Ascenseur, Visiophonie
LYON (69007)
771,50 €
Logement intermédiaire

Le logement intermédiaire est 10 à 15 % inférieur au prix du marché et implanté au plus près des bassins d'emploi. L'attribution est soumise à plafonds de ressources.

Appartement

3 pièces - 6ème étage - 60m²

Ascenseur, Visiophonie
LYON (69007)
943,69 €
Logement intermédiaire

Le logement intermédiaire est 10 à 15 % inférieur au prix du marché et implanté au plus près des bassins d'emploi. L'attribution est soumise à plafonds de ressources.

Appartement

3 pièces - 5ème étage - 60m²

Parking, Ascenseur, Visiophonie
LYON (69007)
1 079,49 €
Logement à loyer libre

Logements locatifs à loyer libre, inférieur au prix du marché privé.

Appartement

4 pièces - 3ème étage - 104m²

Parking, Ascenseur
Résidence UrbaGreen
LYON (69009)
1 325,12 €