Le logement intermédiaire est 10 à 15 % inférieur au prix du marché et implanté au plus près des bassins d'emploi. L'attribution est soumise à plafonds de ressources.
- Accueil
- Rechercher un logement
- Bourgogne-Franche-Comté
- Côte-d'Or
- CHENOVE
- Fiche produit

Le logement intermédiaire est 10 à 15 % inférieur au prix du marché et implanté au plus près des bassins d'emploi. L'attribution est soumise à plafonds de ressources.
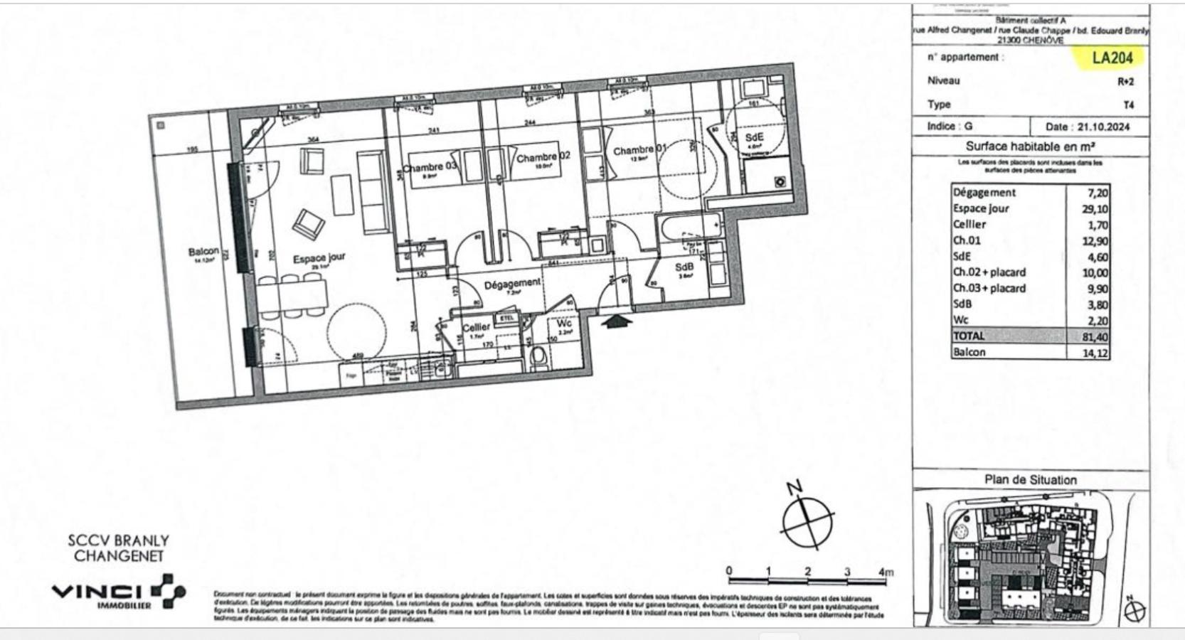
4 pièces - 2ème étage - 80m²
12 RUE ALFRED CHANGENET - CHENOVE (21300)








Location appartement
4 pièces - 2ème étage - 80m²
Ref : B020-364942
12 RUE ALFRED CHANGENET - CHENOVE (21300)1 034,71 €
Charges comprises
A propos du prixA propos du prix
Caractériques
Logement
- Parking
- Ascenseur
- Visiophonie
- Double vitrage
- Volets
Résidence et parties communes
- Année de construction : 2025
Chauffage et énergie
- Collectif Chauffage urbain
-
Consommation énergétique
Consommation (énergie primaire)
76 kWh/m2.an -
Bilan Émission de gaz à effet de serre
Emissions
7 kg CO2/m².an
Description
Découvrez l'appartement T4 exposé ouest de 80 m² au 2e étage du programme immobilier « PULSAR ». Ce programme immobilier vous propose ces appartements non-meublés dans un immeuble avec visiophone. Le chauffage du logement est collectif et les fenêtres sont double vitrage. Vous pourrez profiter du confort offert par les volets. Au sol de l'appartement, vous trouverez du parquet. Le lot dispose aussi d'un parking. Le loyer est de 1 034 EUR CC, dont 208,19 EUR de charges. Il se situe à CHENOVE (21300). Des écoles de tous niveaux (de la maternelle au lycée) se trouvent à moins de 10 minutes à pied, tout comme 3 crèches. Côté transports, il y a 4 lignes de bus (93, 42, L4 et 14) ainsi que la ligne de tramway T2 (Chenôve Centre) à quelques pas du bien. Les autoroutes A311, A38 et A39 et la nationale N274 sont accessibles à moins de 6 km. Vous trouverez une bibliothèque, un conservatoire, un tennis et un bassin de natation dans les environs. On trouve également des restaurants, des commerces, 2 supermarchés, des boulangeries, 2 boucheries-charcuteries et un bureau de poste. Le marché Place Coluche a lieu tous les dimanches matin.Autres logements similaires
Le logement intermédiaire est 10 à 15 % inférieur au prix du marché et implanté au plus près des bassins d'emploi. L'attribution est soumise à plafonds de ressources.
Le logement intermédiaire est 10 à 15 % inférieur au prix du marché et implanté au plus près des bassins d'emploi. L'attribution est soumise à plafonds de ressources.
Le logement intermédiaire est 10 à 15 % inférieur au prix du marché et implanté au plus près des bassins d'emploi. L'attribution est soumise à plafonds de ressources.