facebook tracking
Accéder au contenu principal Accéder au plan de site
Adapter l'affichage
Big image
Logement intermédiaire

Le logement intermédiaire est 10 à 15 % inférieur au prix du marché et implanté au plus près des bassins d'emploi. L'attribution est soumise à plafonds de ressources.

Big image

Les plus

Parking
Visiophonie

Location appartement

2 pièces - RDC - 52m²

Ref : B020-364948

2 RUE CLAUDE CHAPPE - CHENOVE (21300)

688,64 €

Charges comprises

A propos du prix

Sans honoraires
2 RUE CLAUDE CHAPPE CHENOVE (21300)

Caractériques

Logement

  • Parking
  • Visiophonie
  • Double vitrage
  • Volets

Résidence et parties communes

  • Année de construction : 2025

Chauffage et énergie

  • Collectif Chauffage urbain
  • Consommation énergétique

    DPE B Consommation (énergie primaire)
    91 kWh/m2.an
  • Bilan Émission de gaz à effet de serre

    GES B Emissions
    9 kg CO2/m².an

Description

SANS HONORAIRES.
SANS HONORAIRES - Situation idéale au pied du TRAM 2 - y compris chauffage et parking.
Plafond de ressources LLI (logement intermédiaire).
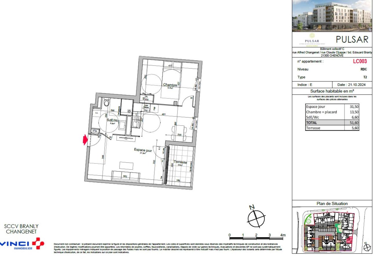
À Chenôve, devenez locataire de notre nouveau programme « PULSAR », 2 rue Claude Chappe. Venez découvrir notre T2 de 51m² en rez de chaussé surélevé.
Le logement se compose d'un très grand espace séjour de 31m² ouvert sur cuisine aménagée mais non équipée donant sur balcon de 6m², une chambre avec placard, une salle de douche avec wc + stationnement en sous-sol. Chauffage collectif urbain. Le loyer s'élève à 688 EUR (comprend les charges générales, chauffage, eau chaude et stationnement). Prévoir de rajouter un abonnement d'eau froide.
Disponible fin juin 2026.
Référence à rappeler lors de nos échanges : B020 - 364948
Les informations sur les risques auxquels ce bien est exposé sont disponibles sur le site Géorisques : www.georisques.gouv.fr

Autres logements similaires

Logement intermédiaire

Le logement intermédiaire est 10 à 15 % inférieur au prix du marché et implanté au plus près des bassins d'emploi. L'attribution est soumise à plafonds de ressources.

Appartement

3 pièces - 3ème étage - 63m²

Parking, Ascenseur, Visiophonie
CHENOVE (21300)
743,85 €