facebook tracking
Accéder au contenu principal Accéder au plan de site
Adapter l'affichage
Big image
Logement à loyer libre

Logements locatifs à loyer libre, inférieur au prix du marché privé.

Logement neuf
Big image

Les plus

Parking

Location appartement

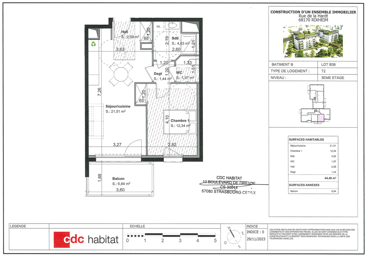
3 pièces - 3ème étage - 67m²

Ref : B037-373875

13 RUE DE LA HARDT - RIXHEIM (68170)

936,17 €

Charges comprises

A propos du prix

Sans honoraires
13 RUE DE LA HARDT RIXHEIM (68170)

Caractériques

Logement

  • Parking

Résidence et parties communes

  • Année de construction : 2026

Chauffage et énergie

  • Collectif Chauffage urbain
  • Consommation énergétique

    DPE B Consommation (énergie primaire)
    77 kWh/m2.an
  • Bilan Émission de gaz à effet de serre

    GES A Emissions
    5 kg CO2/m².an

Description

À louer ? Appartement Type 3 ? 67 m² ? Rixheim
Situé à Rixheim, au 3? étage de la résidence La Lisière des Champs, au 13 rue de la Hardt, appartement Type 3 d?une superficie de 67 m².
Le logement se compose d?une pièce de vie, d?une cuisine, de deux chambres, d?une salle de bains et de WC.
Chauffage et eau chaude collectifs.
Deux places de stationnement extérieures privatives sont comprises avec le logement.
Disponible immédiatement.
Pour toute information complémentaire ou pour organiser une visite, merci de nous contacter.

Autres logements similaires

Logement à loyer libre

Logements locatifs à loyer libre, inférieur au prix du marché privé.

Appartement

1 pièce - RDC - 26m²

Parking
RIXHEIM (68170)
484,93 €
Logement à loyer libre

Logements locatifs à loyer libre, inférieur au prix du marché privé.

Appartement

1 pièce - RDC - 31m²

Parking
RIXHEIM (68170)
563,63 €
Logement à loyer libre

Logements locatifs à loyer libre, inférieur au prix du marché privé.

Appartement

2 pièces - 3ème étage - 45m²

Parking
RIXHEIM (68170)
710,16 €
Logement à loyer libre

Logements locatifs à loyer libre, inférieur au prix du marché privé.

Appartement

2 pièces - 3ème étage - 45m²

Parking
RIXHEIM (68170)
726,45 €