facebook tracking
Accéder au contenu principal Accéder au plan de site
Adapter l'affichage
Big image
Logement intermédiaire

Le logement intermédiaire est 10 à 15 % inférieur au prix du marché et implanté au plus près des bassins d'emploi. L'attribution est soumise à plafonds de ressources.

Logement neuf
Big image

Les plus

Parking

Location appartement

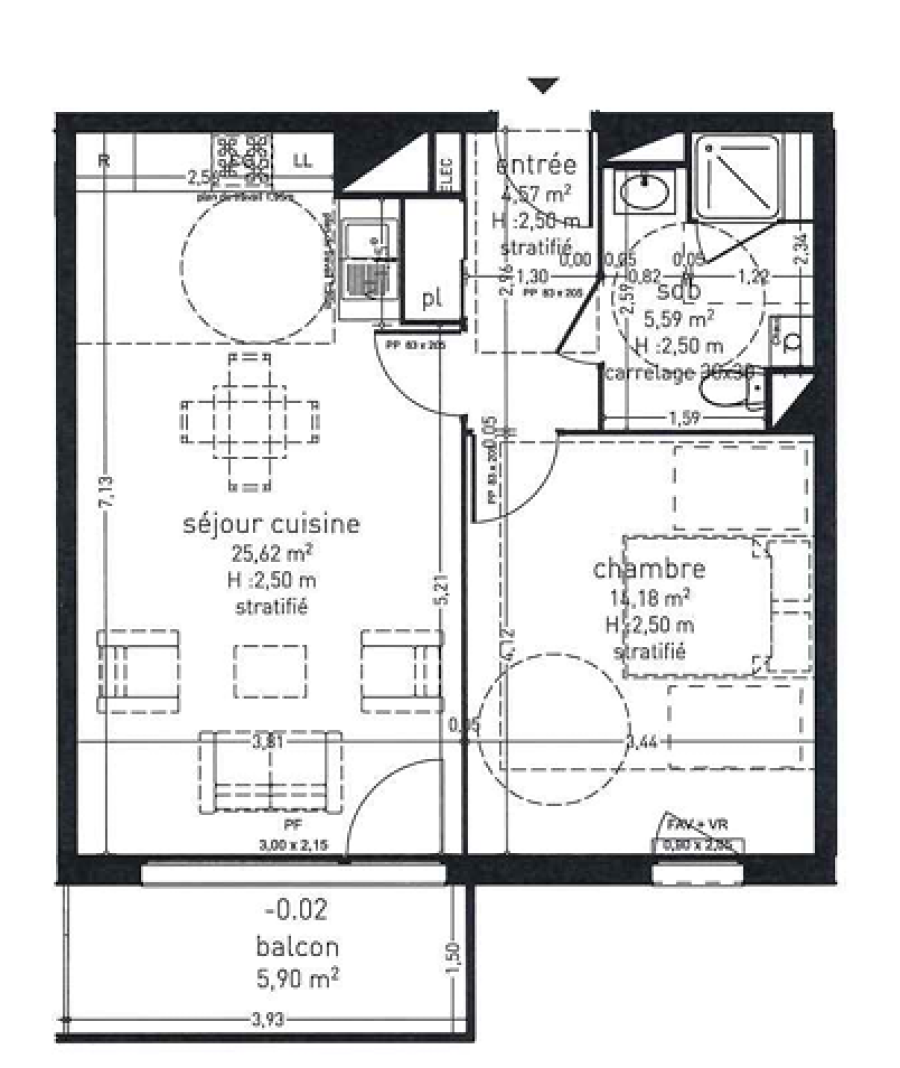
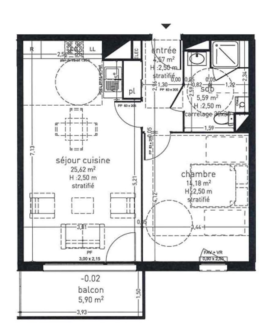
3 pièces - 2ème étage - 66m²

Ref : 6746-379396

2 RUE ERNEST MACAREZ - VALENCIENNES (59300)

742,04 €

Charges comprises

A propos du prix

Sans honoraires
2 RUE ERNEST MACAREZ VALENCIENNES (59300)

Caractériques

Logement

  • Parking

Résidence et parties communes

  • Année de construction : 2026

Chauffage et énergie

  • Individuel Chaudière gaz
  • Consommation énergétique

    DPE C Consommation (énergie primaire)
    56 kWh/m2.an
  • Bilan Émission de gaz à effet de serre

    GES C Emissions
    11 kg CO2/m².an

Description

À Valenciennes, à proximité du centre ville et de la gare, découvrez notre nouveau programme immobilier « TERRAE 2».
Cet appartement de type 3 est situé au 2ème étage. Il est composé d'une entrée avec placard de rangement, d'une pièce de vie de 24m² donnant sur un balcon. La cuisine est ouverte et aménagée. Vous disposez de deux grande chambre dont une avec placard et d'une salle de bains (baignoire) avec WC séparés.
Une place de parking complète ce bien. Le chauffage est individuel au gaz.
Photos du logement témoin (T3)

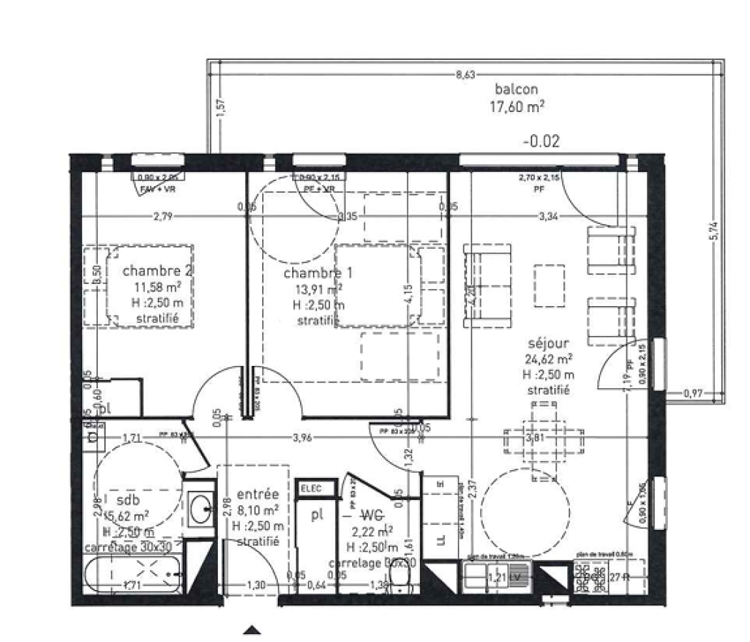
Autres logements similaires

Logement intermédiaire

Le logement intermédiaire est 10 à 15 % inférieur au prix du marché et implanté au plus près des bassins d'emploi. L'attribution est soumise à plafonds de ressources.

Appartement

2 pièces - 1er étage - 49m²

Parking, Ascenseur
VALENCIENNES (59300)
649,32 €
Logement intermédiaire

Le logement intermédiaire est 10 à 15 % inférieur au prix du marché et implanté au plus près des bassins d'emploi. L'attribution est soumise à plafonds de ressources.

Appartement

2 pièces - 3ème étage - 50m²

Parking, Ascenseur
VALENCIENNES (59300)
662,02 €
Logement intermédiaire

Le logement intermédiaire est 10 à 15 % inférieur au prix du marché et implanté au plus près des bassins d'emploi. L'attribution est soumise à plafonds de ressources.

Appartement

2 pièces - 2ème étage - 51m²

Parking, Ascenseur
VALENCIENNES (59300)
672,04 €
Logement intermédiaire

Le logement intermédiaire est 10 à 15 % inférieur au prix du marché et implanté au plus près des bassins d'emploi. L'attribution est soumise à plafonds de ressources.

Appartement

3 pièces - 1er étage - 66m²

Parking, Ascenseur
VALENCIENNES (59300)
747,07 €