facebook tracking
Accéder au contenu principal Accéder au plan de site
Adapter l'affichage
Big image
Logement à loyer libre

Logements locatifs à loyer libre, inférieur au prix du marché privé.

Logement neuf
Big image

Les plus

Cuisine aménagée
Parking
Ascenseur

Location appartement

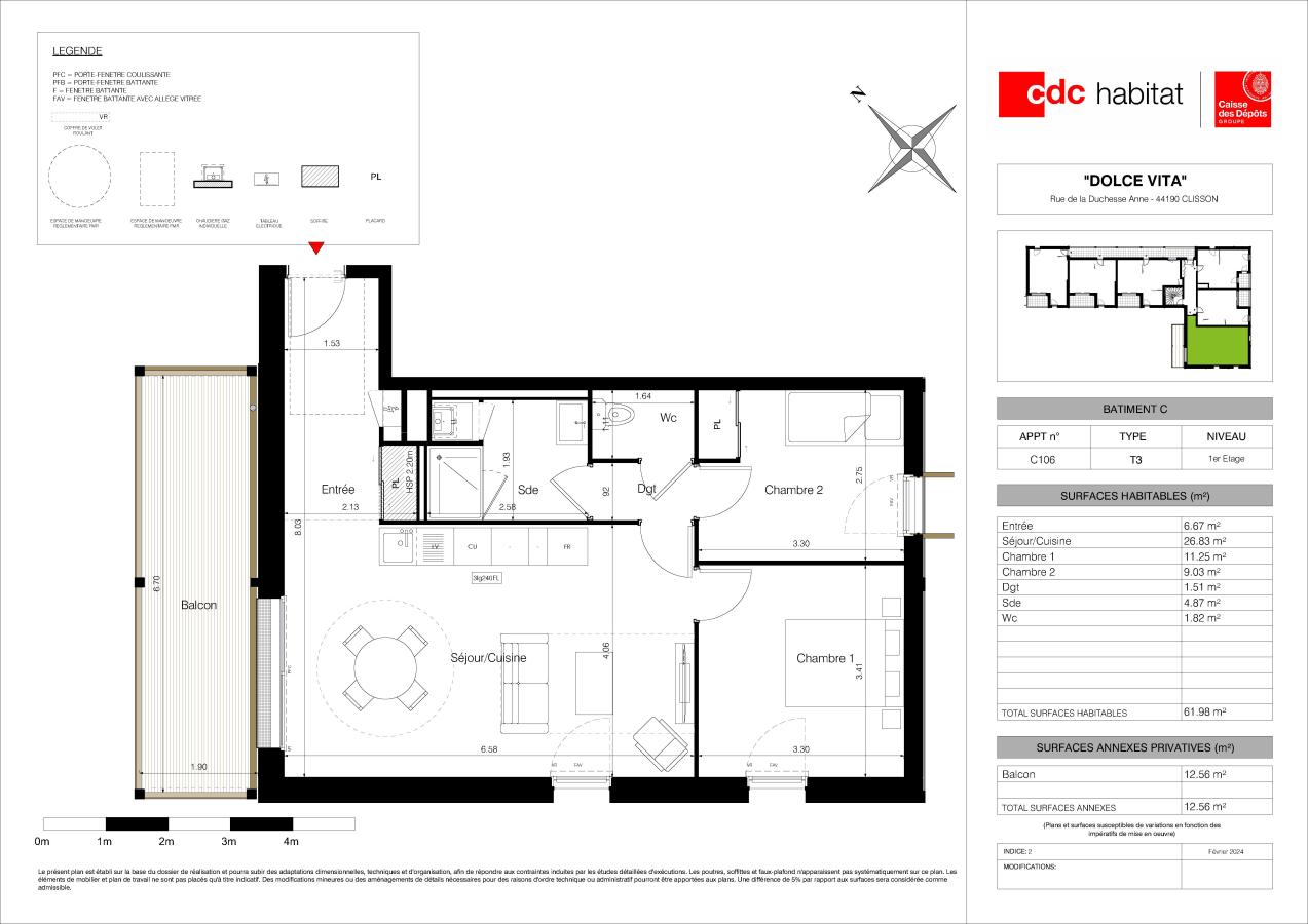
3 pièces - 1er étage - 63m²

Ref : B018-389552

16 RUE DUCHESSE ANNE - CLISSON (44190)

714,30 €

Charges comprises

A propos du prix

Sans honoraires
16 RUE DUCHESSE ANNE CLISSON (44190)

Caractériques

Logement

  • Cuisine aménagée
  • Parking
  • Ascenseur
  • Visiophonie
  • Double vitrage
  • Volets

Résidence et parties communes

  • Année de construction : 2026

Chauffage et énergie

  • Individuel Chaudière gaz

Description

SANS HONORAIRES.
Clisson - Quartier du Champ de Foire
Au sein du nouveau quartier du Champ de Foire, 2, rue de la Duchesse Anne, à 10 min à pied du coeur d'une ville de caractère, devenez le 1er locataire d'un agréable T3 d'une résidence neuve.
Ce logement au 1er étage avec ascenseur est constitué d'une entrée avec placard, d'un agréable séjour cuisine de 26 m² (la cuisine est aménagée et équipée d'une hotte et d'une plaque vitrocéramique) prolongé par un grand balcon de 12,56 m², de deux chambres dont une avec un placard aménagé, d'une salle d'eau, de wc séparés. Place de stationnement extérieure.
Chauffage et production d'eau chaude par une chaudière individuelle gaz. Classe DPE : C. Réservation sur plan, logement disponible début juillet. Situation idéale proche du centre de Clisson et de son air de dolce vita, de sa gare avec le train qui relie le centre de Nantes en 20 min, profitez de la quiétude de Clisson et de son vignoble.
Contactez-nous sans attendre!
Référence à rappeler lors de nos échanges : B018 - 389552
Les informations sur les risques auxquels ce bien est exposé sont disponibles sur le site Géorisques : www.georisques.gouv.fr

Autres logements similaires

Logement à loyer libre

Logements locatifs à loyer libre, inférieur au prix du marché privé.

Appartement

1 pièce - RDC - 30m²

Cuisine aménagée, Parking, Ascenseur
CLISSON (44190)
486,68 €
Logement à loyer libre

Logements locatifs à loyer libre, inférieur au prix du marché privé.

Appartement

2 pièces - 1er étage - 43m²

Cuisine aménagée, Parking, Ascenseur
CLISSON (44190)
612,67 €
Logement à loyer libre

Logements locatifs à loyer libre, inférieur au prix du marché privé.

Appartement

2 pièces - RDC - 43m²

Cuisine aménagée, Parking, Ascenseur
CLISSON (44190)
627,21 €
Logement à loyer libre

Logements locatifs à loyer libre, inférieur au prix du marché privé.

Appartement

3 pièces - 1er étage - 74m²

Cuisine aménagée, Parking, Visiophonie
CLISSON (44190)
862,91 €