Logements à loyer modéré. Pour en bénéficier, vous devez être titulaire d\'un numéro unique de demande de logement social
- Accueil
- Rechercher un logement
- Pays-de-la-Loire
- Loire-Atlantique
- NANTES
- Fiche produit

Logement intermédiaire
Le logement intermédiaire est 10 à 15 % inférieur au prix du marché et implanté au plus près des bassins d'emploi. L'attribution est soumise à plafonds de ressources.
Location appartement
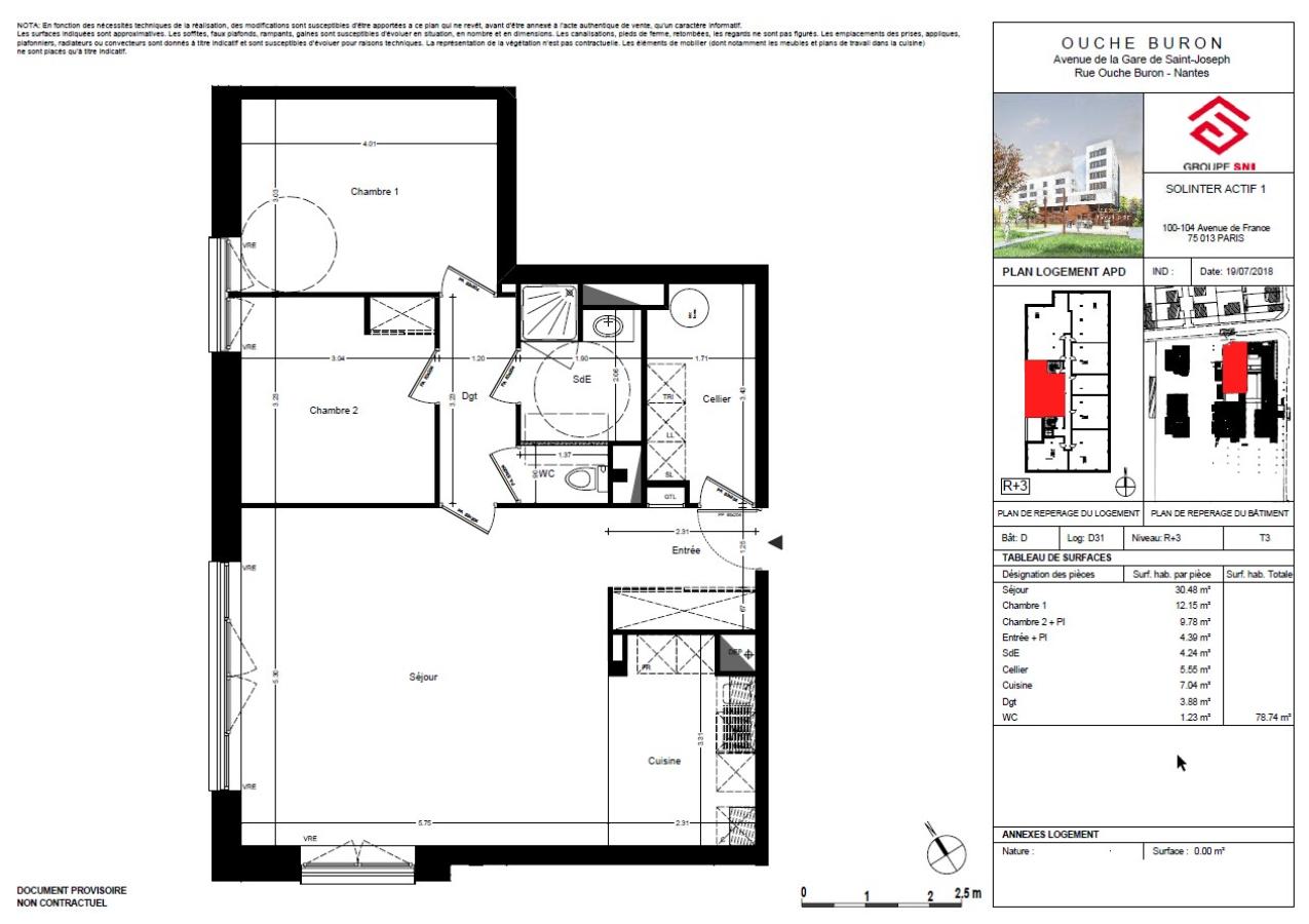
3 pièces - 3ème étage - 79m²
Ref : 0047-002056
4 ALLEE RENEE LOSQ - NANTES (44300)979,25 €
Charges comprises
A propos du prixA propos du prix
Loyer charges comprises
979,25 € / mois
Dont
Charges générales
85,18 €
Dépôt de garantie
894,07 €
Facture d'énergie estimée
602,00 €
4 ALLEE RENEE LOSQ NANTES (44300)
Caractériques
Logement
- Parking
- Ascenseur
- Double vitrage
- Volets
Résidence et parties communes
- Année de construction : 2019
Chauffage et énergie
- Individuel Electrique
-
Consommation énergétique
Consommation (énergie primaire)
68 kWh/m2.an -
Bilan Émission de gaz à effet de serre
Emissions
2 kg CO2/m².an
Description
SANS HONORAIRES.Nantes - Quartier Haluchère - Sans honoraires
Découvrez ce magnifique T3 de 78,74 m², situé au 3eme étage avec ascenseur dans une résidence de 2019 proche de toutes commodités. Ce logement est composé d' une entrée avec placard aménagé, d'un séjour de 37,52 m² avec cuisine ouverte, de 2 chambres dont 1 avec placard aménagé, d'une salle d'eau de 4,24 m², de WC indépendants, d'un cellier. Place de parking au rdc du bâtiment.
Chauffage individuel électrique. Entretien des parties communes, ascenseur et espaces verts compris dans les charges. Ce logement est soumis aux plafonds de ressources LLI.
Contactez-nous sans tarder!
Référence à rappeler lors de nos échanges : 0047 - 002056
Les informations sur les risques auxquels ce bien est exposé sont disponibles sur le site Géorisques : www.georisques.gouv.fr
Autres logements similaires
Logement social
Logement social
Logements à loyer modéré. Pour en bénéficier, vous devez être titulaire d\'un numéro unique de demande de logement social
Logement à loyer libre
Logements locatifs à loyer libre, inférieur au prix du marché privé.
Logement intermédiaire
Le logement intermédiaire est 10 à 15 % inférieur au prix du marché et implanté au plus près des bassins d'emploi. L'attribution est soumise à plafonds de ressources.