Le logement intermédiaire est 10 à 15 % inférieur au prix du marché et implanté au plus près des bassins d'emploi. L'attribution est soumise à plafonds de ressources.
- Accueil
- Rechercher un logement
- Provence-Alpes-Côte d'Azur
- Var
- FREJUS
- Fiche produit

Logement intermédiaire
Le logement intermédiaire est 10 à 15 % inférieur au prix du marché et implanté au plus près des bassins d'emploi. L'attribution est soumise à plafonds de ressources.
Location appartement
3 pièces - 2ème étage - 62m²
Ref : 7564-321813
45 Rue des chênes - FREJUS (83600)880,54 €
Charges comprises
A propos du prixA propos du prix
Loyer charges comprises
880,54 € / mois
Dont
Charges générales
168,82 €
Dépôt de garantie
711,72 €
Facture d'énergie estimée
340,00 €
45 Rue des chênes FREJUS (83600)
Caractériques
Logement
- Parking
- Ascenseur
- Double vitrage
- Volets
Résidence et parties communes
- Année de construction : 2022
Chauffage et énergie
- Individuel Electrique
-
Consommation énergétique
Consommation (énergie primaire)
50 kWh/m2.an -
Bilan Émission de gaz à effet de serre
Emissions
1 kg CO2/m².an
Description
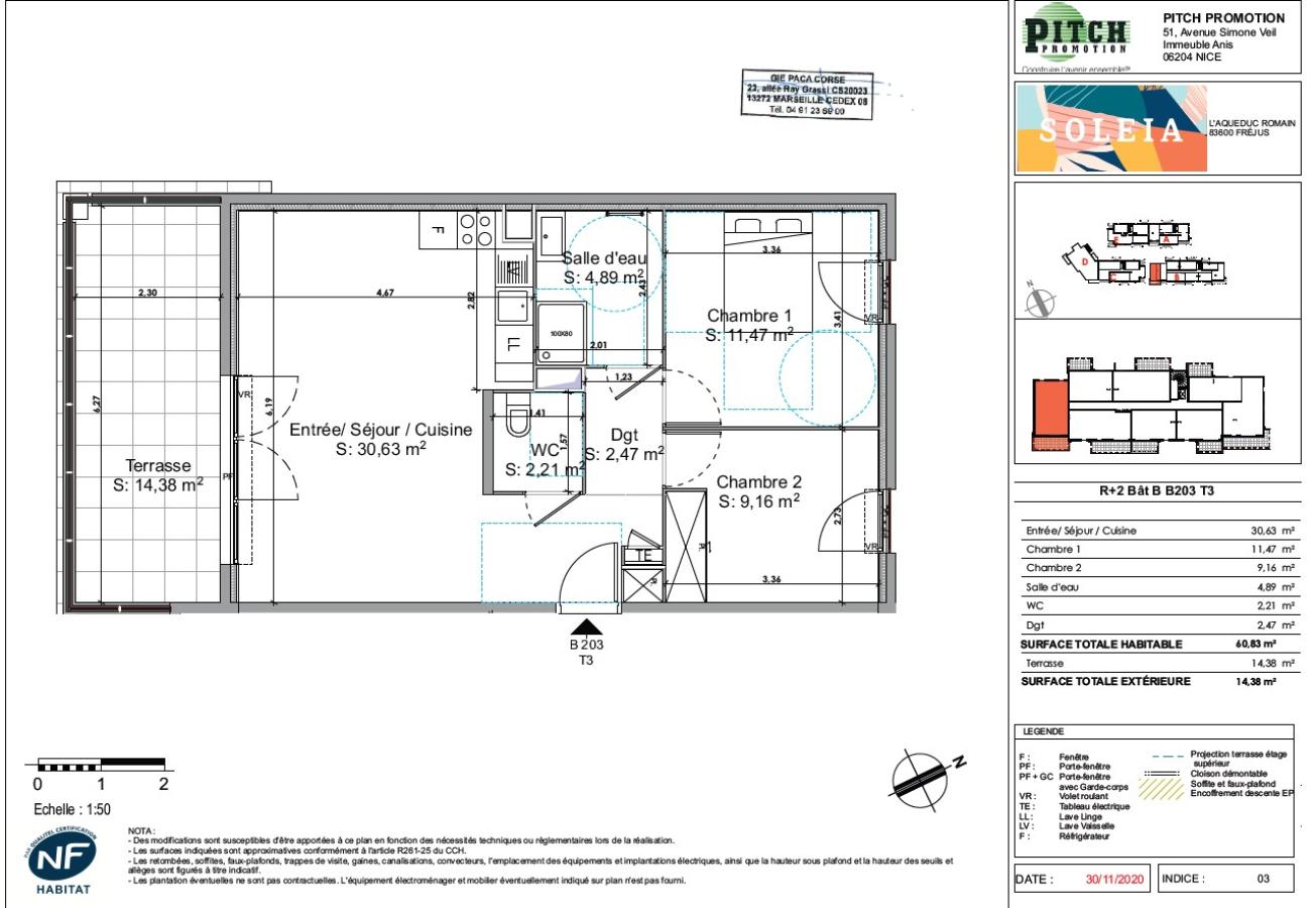
SANS HONORAIRES.Résidence Soleia - 45 rue des Chênes - Fréjus.
A proximité de toutes les commodités ! A 10 minutes à pied du centre-ville et 2 minutes en voiture.
Appartement de 3 pièces, au 2ème et dernier étage, composé d'une entrée avec petit placard, séjour/ cuisine (non aménagée/ni équipée) donnant sur terrasse de 14.38m², deux chambres dont une avec placard, salle d'eau et wc séparé.
Un emplacement de parking en sous-sol.
Il est inclus dans les charges, l'eau chaude (compteur), la taxe d'ordure ménagère et l'entretien des parties communes.
Contrat d'eau froide individuel auprès de VEOLIA
Vis-à-vis important !
***réf : 321813***
Référence à rappeler lors de nos échanges : 7564 - 321813
Les informations sur les risques auxquels ce bien est exposé sont disponibles sur le site Géorisques : www.georisques.gouv.fr
Autres logements similaires
Logement intermédiaire
Appartement
Parking, Ascenseur, Visiophonie
Résidence RESIDENCE GIO
FREJUS (83600)
705,41 €
Logement intermédiaire
Le logement intermédiaire est 10 à 15 % inférieur au prix du marché et implanté au plus près des bassins d'emploi. L'attribution est soumise à plafonds de ressources.
Logement à loyer libre
Logements locatifs à loyer libre, inférieur au prix du marché privé.
Logement intermédiaire
Le logement intermédiaire est 10 à 15 % inférieur au prix du marché et implanté au plus près des bassins d'emploi. L'attribution est soumise à plafonds de ressources.