Le logement intermédiaire est 10 à 15 % inférieur au prix du marché et implanté au plus près des bassins d'emploi. L'attribution est soumise à plafonds de ressources.
- Accueil
- Rechercher un logement
- Provence-Alpes-Côte d'Azur
- Var
- FREJUS
- Fiche produit

Le logement intermédiaire est 10 à 15 % inférieur au prix du marché et implanté au plus près des bassins d'emploi. L'attribution est soumise à plafonds de ressources.
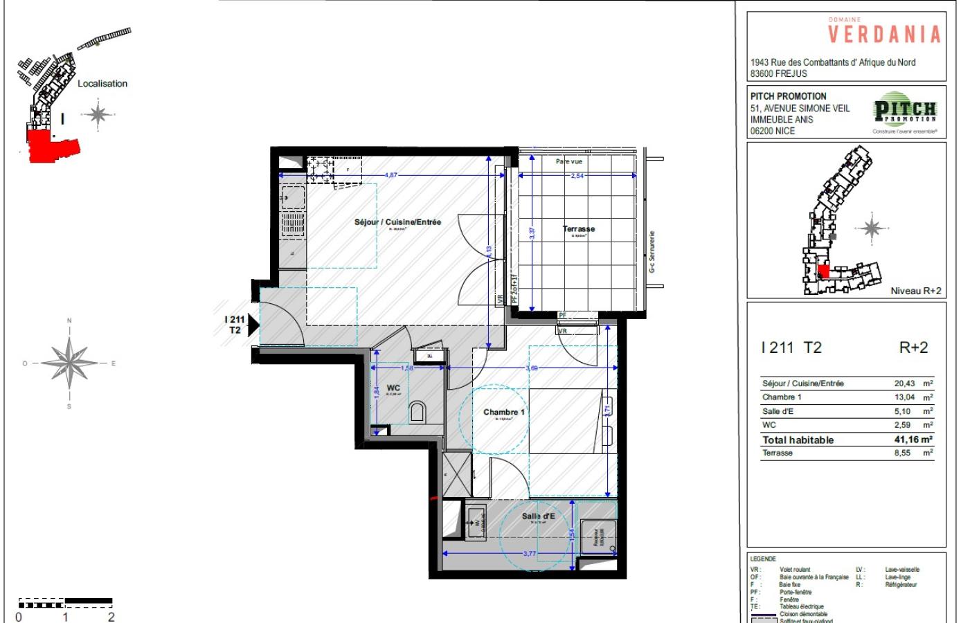
3 pièces - 1er étage - 65m²
121 Impasse du Capitaine MADEMBA - FREJUS (83600)





Location appartement
3 pièces - 1er étage - 65m²
Ref : A214-324644
121 Impasse du Capitaine MADEMBA - FREJUS (83600)1 041,34 €
Charges comprises
A propos du prixA propos du prix
Caractériques
Logement
- Parking
- Ascenseur
- Visiophonie
- Double vitrage
- Volets
Résidence et parties communes
- Année de construction : 2019
Chauffage et énergie
- Individuel Electrique
-
Consommation énergétique
Consommation (énergie primaire)
44 kWh/m2.an -
Bilan Émission de gaz à effet de serre
Emissions
1 kg CO2/m².an
Description
SANS HONORAIRES.Résidence "Domaine Verdania", 121 Impasse du capitaine Mademba - Fréjus.
Au c?ur d?un espace boisé luxuriant, dans un environnement calme.. Bien qu?elle soit implantée dans un quartier résidentiel, les écoles sont facilement accessibles à pied et les commerces en bus. Vous pourrez rejoindre le centre historique en seulement 10 minutes.
Appartement de type 3 pièces (T3) de près de 65 m² au 1er étage avec ascenseur, composé d'une entrée avec placard, d'un espace séjour /cuisine aménagée (sans électroménager) prolongé par une terrasse ensoleillée, 2 chambres dont une avec placard, une salle de douche et un wc séparé.
Une place de parking privative complète le lot.
Le loyer charges comprises inclut notamment la taxe ordures ménagères, la production d'eau chaude, l'eau froide, l'entretien des parties communes et des jardins, l'ascenseur. Le chauffage est électrique individuel.
**réf 324644**
Référence à rappeler lors de nos échanges : A214 - 324644
Les informations sur les risques auxquels ce bien est exposé sont disponibles sur le site Géorisques : www.georisques.gouv.fr
Autres logements similaires
Le logement intermédiaire est 10 à 15 % inférieur au prix du marché et implanté au plus près des bassins d'emploi. L'attribution est soumise à plafonds de ressources.
Logements locatifs à loyer libre, inférieur au prix du marché privé.
Le logement intermédiaire est 10 à 15 % inférieur au prix du marché et implanté au plus près des bassins d'emploi. L'attribution est soumise à plafonds de ressources.