facebook tracking
Adapter l'affichage
Big image
Logement à loyer libre

Logements locatifs à loyer libre, inférieur au prix du marché privé.

Big image

Les plus

Parking
Ascenseur
Visiophonie

Location appartement

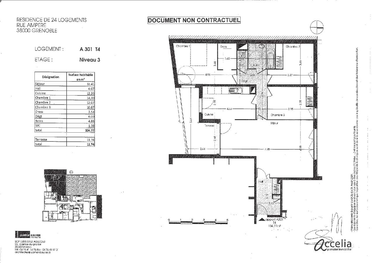
4 pièces - 3ème étage - 105m²

Ref : 5854-248700

6 Rue Ampère, bat A - GRENOBLE (38000)

1 349,81 €

Charges comprises

A propos du prix

Sans honoraires
6 Rue Ampère, bat A GRENOBLE (38000)

Caractériques

Logement

  • Parking
  • Ascenseur
  • Visiophonie
  • Double vitrage
  • Volets

Résidence et parties communes

  • Année de construction : 2011

Chauffage et énergie

  • Collectif Chaudière gaz
  • Consommation énergétique

    DPE C Consommation (énergie primaire)
    98 kWh/m2.an
  • Bilan Émission de gaz à effet de serre

    GES C Emissions
    18 kg CO2/m².an

Description

SANS HONORAIRES.
GRENOBLE, Bouchayer Viallet, 6 rue Ampère, au sein d'une résidence récente et sécurisée.

T4 de 104m² au 3ème étage avec terrasse.

Composé d'un grand séjour et d'une cuisine (non aménagée / photo non actuelle) ouvrant sur une terrasse agréable à vivre, 3 chambres avec parquet au sol, placard.
La salle de bains est équipée d'un meuble sous évier et sèche serviettes.

Un garage fermé en sous sol est associé au logement.

Le chauffage, l'eau chaude et l'eau froide sont compris dans les charges.

Location en direct auprès du propriétaire gestionnaire.

SANS HONORAIRES. A SAISIR RAPIDEMENT.
Référence à rappeler lors de nos échanges : 5854 - 248700
Les informations sur les risques auxquels ce bien est exposé sont disponibles sur le site Géorisques : www.georisques.gouv.fr

Autres logements similaires

Logement à loyer libre

Logements locatifs à loyer libre, inférieur au prix du marché privé.

Appartement

2 pièces - RDC - 52m²

Parking, Ascenseur
GRENOBLE (38000)
794,86 €
Logement à loyer libre

Logements locatifs à loyer libre, inférieur au prix du marché privé.

Appartement

2 pièces - 1er étage - 54m²

Parking, Ascenseur, Visiophonie
Résidence Le Concerto
GRENOBLE (38000)
867,47 €
Logement à loyer libre

Logements locatifs à loyer libre, inférieur au prix du marché privé.

Appartement

2 pièces - 1er étage - 55m²

Cuisine aménagée, Parking, Ascenseur
GRENOBLE (38000)
916,82 €
Logement à loyer libre

Logements locatifs à loyer libre, inférieur au prix du marché privé.

Appartement

3 pièces - 3ème étage - 73m²

Parking, Ascenseur
GRENOBLE (38000)
1 124,25 €