facebook tracking
Accéder au contenu principal Accéder au plan de site
Adapter l'affichage
Big image
Logement intermédiaire

Le logement intermédiaire est 10 à 15 % inférieur au prix du marché et implanté au plus près des bassins d'emploi. L'attribution est soumise à plafonds de ressources.

Logement neuf
Big image

Les plus

Ascenseur
Visiophonie

Location appartement

2 pièces - 4ème étage - 48m²

Ref : B083-385630

Résidence Opus - 132 BOULEVARD LAVOISIER - CLERMONT FERRAND (63000)

659,58 €

Charges comprises

A propos du prix

Sans honoraires
Résidence Opus
132 BOULEVARD LAVOISIER CLERMONT FERRAND (63000)

Caractériques

Logement

  • Ascenseur
  • Visiophonie
  • Double vitrage
  • Volets

Résidence et parties communes

  • Balcon / Terrasse / Loggia
  • Espaces verts
  • Année de construction : 2025

Description

SANS HONORAIRES.
Alerte ! Résidence neuve OPUS ! Belles opportunités à saisir !

132 BOULEVARD LAVOISIER à CLERMONT.

Découvrez les appartements non meublés de cette résidence.

Notre programme vous propose cet appartement T2 de 48 m² au 4è étage.

CHAUFFAGE / EAU CHAUDE / EAU FROIDE inclus dans les charges.

La livraison (et donc aménagement) se tiendra la deuxième quinzaine de Mars !

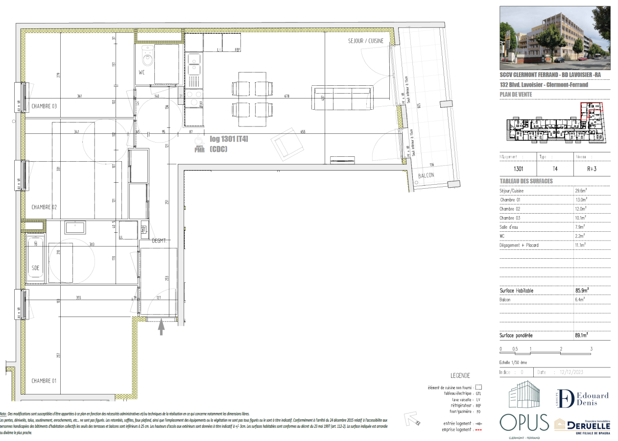
Le logement se compose d'un séjour / cuisine (aménagée) de 31.7m2 donnant accès à une terrasse de 5.3m2. Ce dernier est exposé NORD / EST et vous permettra de profiter du soleil.
La chambre de 10.9m2 donne également accès à l'extérieur.
Une salle de douche avec les WC complètent le bien.
Voir plan pour une meilleure visualisation.

PS : photos non contractuelles, nous n'avons pas encore pris en photos tous les logements, cependant, les finitions présentées seront identiques.

Il est à louer pour 660 EUR CC, dont 125 EUR de charges.

Très proche centre-ville !
Il se situe à CLERMONT FERRAND (63000). Il y a des établissements scolaires de tous types à moins de 10 minutes à pied, tout comme une structure d'accueil pour les enfants en bas âge. Niveau transports, on trouve 11 lignes de bus ainsi que la ligne de tramway A (Gaillard) à proximité. Des autoroutes, la nationale N89 et l'aéroport Clermont-Ferrand sont accessibles à moins de 8 km. 3 cinémas vous accueillent dans les environs pour vos loisirs. Il y a également des restaurants, des commerces, des supermarchés, des boulangeries, des boucheries charcuteries et une supérette.

A SAISIR RAPIDEMENT.

SANS HONORAIRES.
Référence à rappeler lors de nos échanges : B083 - 385630
Les informations sur les risques auxquels ce bien est exposé sont disponibles sur le site Géorisques : www.georisques.gouv.fr

Résidence Opus

Autres logements similaires

Logement intermédiaire

Le logement intermédiaire est 10 à 15 % inférieur au prix du marché et implanté au plus près des bassins d'emploi. L'attribution est soumise à plafonds de ressources.

Appartement

3 pièces - 1er étage - 63m²

Parking, Visiophonie
Résidence Opus
CLERMONT FERRAND (63000)
828,01 €
Logement intermédiaire

Le logement intermédiaire est 10 à 15 % inférieur au prix du marché et implanté au plus près des bassins d'emploi. L'attribution est soumise à plafonds de ressources.

Appartement

4 pièces - 1er étage - 86m²

Parking, Visiophonie
Résidence Opus
CLERMONT FERRAND (63000)
1 073,68 €
Logement intermédiaire

Le logement intermédiaire est 10 à 15 % inférieur au prix du marché et implanté au plus près des bassins d'emploi. L'attribution est soumise à plafonds de ressources.

Appartement

4 pièces - 4ème étage - 86m²

Parking, Ascenseur, Visiophonie
Résidence Fabriks de Mai
CLERMONT FERRAND (63000)
1 096,28 €
Logement intermédiaire

Le logement intermédiaire est 10 à 15 % inférieur au prix du marché et implanté au plus près des bassins d'emploi. L'attribution est soumise à plafonds de ressources.

Appartement

4 pièces - 3ème étage - 86m²

Parking, Ascenseur, Visiophonie
Résidence Opus
CLERMONT FERRAND (63000)
1 097,57 €