facebook tracking
Accéder au contenu principal Accéder au plan de site
Adapter l'affichage
Big image
Logement intermédiaire

Le logement intermédiaire est 10 à 15 % inférieur au prix du marché et implanté au plus près des bassins d'emploi. L'attribution est soumise à plafonds de ressources.

Big image

Les plus

Cuisine aménagée
Parking
Ascenseur

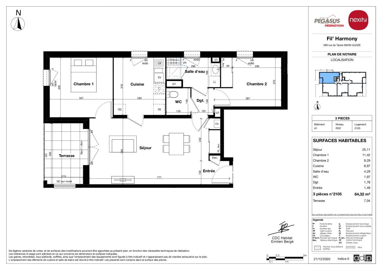
Location appartement

3 pièces - RDC - 65m²

Ref : 6761-326634

Résidence Fil'Harmony - 114 ALLEE ANCIENNES FILATURES - GLEIZE (69400)

683,40 €

Charges comprises

A propos du prix

Sans honoraires
Résidence Fil'Harmony
114 ALLEE ANCIENNES FILATURES GLEIZE (69400)

Caractériques

Logement

  • Cuisine aménagée
  • Parking
  • Ascenseur
  • Visiophonie
  • Double vitrage
  • Volets

Résidence et parties communes

  • Balcon / Terrasse / Loggia
  • Résidence sécurisée
  • Parking
  • Année de construction : 2023

Chauffage et énergie

  • Individuel Chaudière gaz
  • Consommation énergétique

    DPE C Consommation (énergie primaire)
    67 kWh/m2.an
  • Bilan Émission de gaz à effet de serre

    GES C Emissions
    14 kg CO2/m².an

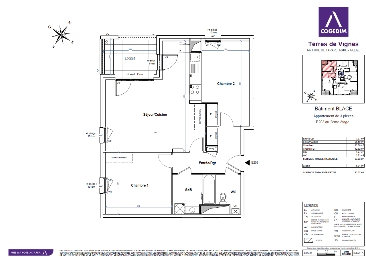
Description

Gleizé, 389 rue de Tarare. Devenez le 1er locataire de ce beau T3 de 60 m2 avec balcon au sein d'une résidence calme et sécurisée.
Ce logement se compose d'une entrée avec placard, d'un séjour/cuisine (meuble évier) de 25 m2, d?un cellier de 1,3 m2, de 2 chambres de 11,3 m2 et 10 m2 (avec placard), d'une salle de bain et un WC séparé. Un balcon de 22 m2 et un garage en sous-sol complète ce bien.
Chauffage individuel au gaz.

Résidence Fil'Harmony

Autres logements similaires

Logement intermédiaire

Le logement intermédiaire est 10 à 15 % inférieur au prix du marché et implanté au plus près des bassins d'emploi. L'attribution est soumise à plafonds de ressources.

Appartement

3 pièces - 3ème étage - 67m²

Parking, Visiophonie
Résidence Terres de Vignes
GLEIZE (69400)
810,30 €