facebook tracking
Accéder au contenu principal Accéder au plan de site
Adapter l'affichage
Big image
Logement intermédiaire

Le logement intermédiaire est 10 à 15 % inférieur au prix du marché et implanté au plus près des bassins d'emploi. L'attribution est soumise à plafonds de ressources.

Big image

Les plus

Parking
Ascenseur
Visiophonie

Location appartement

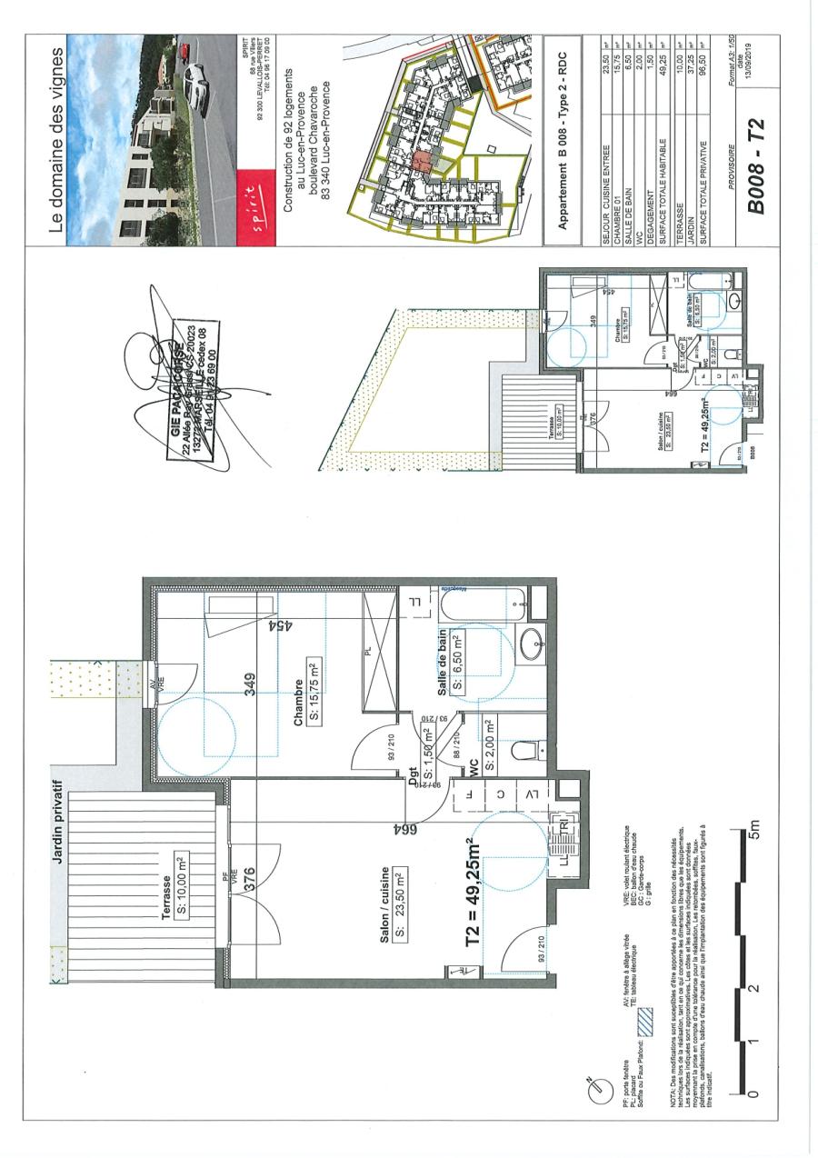
2 pièces - RDC - 49m²

Ref : 6727-320011

Résidence DOMAINES DES VIGNES - 571 Bd Pierre Chavaroche - LE LUC (83340)

644,84 €

Charges comprises

A propos du prix

Sans honoraires
Résidence DOMAINES DES VIGNES
571 Bd Pierre Chavaroche LE LUC (83340)

Caractériques

Logement

  • Parking
  • Ascenseur
  • Visiophonie
  • Double vitrage
  • Volets

Résidence et parties communes

  • Balcon / Terrasse / Loggia
  • Parking
  • Espaces verts
  • Année de construction : 2022

Chauffage et énergie

  • Individuel Electrique
  • Consommation énergétique

    DPE A Consommation (énergie primaire)
    45 kWh/m2.an
  • Bilan Émission de gaz à effet de serre

    GES A Emissions
    1 kg CO2/m².an

Description

SANS HONORAIRES.
Résidence Domaine des Vignes -571 Boulevard Pierre Chavaroche au Luc en Provence. T2 en rez-de-jardin de 49,25 m² composé d'un séjour avec cuisine ouverte semi-aménagée de 23,50 m² donnant sur une terrasse avec jardin plus de 40 m² orienté ouest, une grande chambre de 15,75 m² avec placard, une salle de bain avec baignoire avec baignoire et un WC séparé. Une place de parking en sous sol attribuée au logement. Il est inclus dans les charges : l'eau, la taxe d'ordure ménagère ainsi que l'entretien des parties communes.
Référence à rappeler lors de nos échanges : 6727 - 320011
Les informations sur les risques auxquels ce bien est exposé sont disponibles sur le site Géorisques : www.georisques.gouv.fr

Résidence DOMAINES DES VIGNES